Archello Awards 2025: Open for Entries! Submit your best projects now.
Archello Awards 2025: Open for Entries!
Submit your best projects now.

An efficient model for green urban hubs engaging communities

Applied products
View all applied products

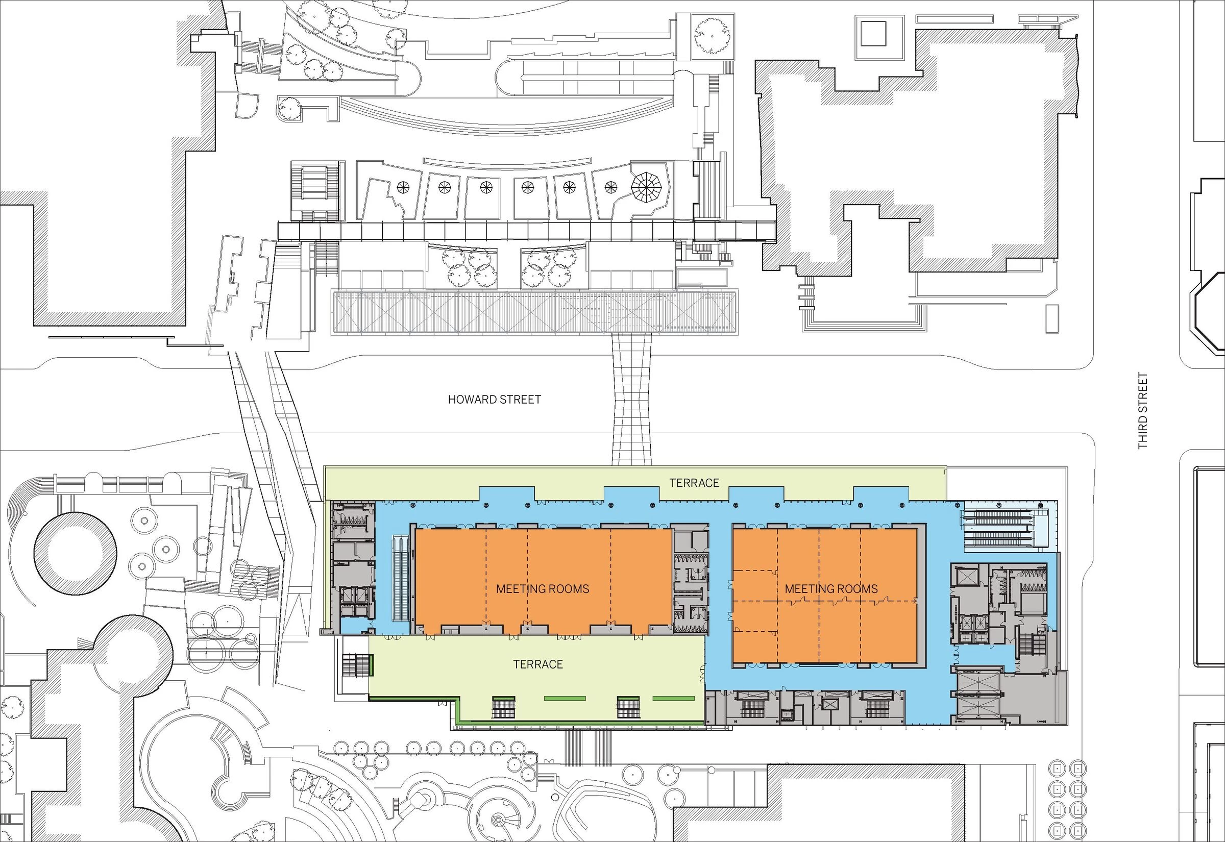
The Moscone Center, located in San Francisco’s downtown cultural district near Yerba Buena Gardens, has long served as a vital public venue. With its recent expansion—designed by SOM in collaboration with Mark Cavagnero Associates—the center now spans nearly 20 acres. The project transformed the existing convention complex into a more open, interconnected network of bright public spaces. Rather than replacing the original structure, the design team opted to retain and expand it, reducing the need for new construction and allowing the center to remain operational throughout the process.

The Moscone Center expansion demonstrates how large public facilities can evolve to meet sustainability goals while deepening their connection to the urban environment. By reusing existing infrastructure, investing in renewable energy and water reuse, and designing for durability and public benefit, the project offers a compelling blueprint for future convention centers and civic buildings in dense urban contexts.

photo_credit Tim Griffith
Tim Griffith
Caption

 

Low-carbon construction strategy

A core goal of the expansion was to reduce the environmental impact typically associated with large-scale construction. By conserving the two below-grade exhibit halls and other structural elements, the project significantly minimized the amount of demolition and new foundation work required. This strategy not only lowered construction costs but also reduced embodied carbon—contributing to what the architects claim is the lowest carbon emissions per visitor of any major convention center in North America.

photo_credit Matthew Millman
Matthew Millman
Caption

 

Energy generation and efficiency

The Moscone Center now features the largest rooftop solar panel installation in San Francisco, which supplies nearly 20 percent of its energy needs. A high-efficiency central plant and a new high-performance building envelope—including fritted glazing and external shading—further improve energy performance. These systems helped the center achieve LEED Platinum certification, the highest level of recognition for sustainable building design.

photo_credit Tim Griffith
Tim Griffith

 

Water reuse and conservation

Designed for net-positive water performance, the center captures and reuses both stormwater and groundwater. This system saves over five million gallons of water annually, making the facility more water-efficient than it was before the expansion. Surplus water supports nearby public landscapes, including Yerba Buena Gardens, and is used in the city’s street cleaning fleet. The center’s extensive rooftop footprint makes it especially effective at harvesting rainwater during the wet season.

 

Material selection and durability

To limit environmental impact over the building’s lifecycle, the project prioritized durable, domestically sourced materials such as steel, concrete, aluminum, and glass. These were selected for their longevity, recyclability, and low embodied carbon. The material palette was intentionally minimized, focusing on finishes with low volatile organic compounds (VOCs) and incorporating high levels of recycled content. All wood used in the project is FSC-certified, and no tropical or exotic woods were specified.

photo_credit Cesar Rubio
Cesar Rubio
Applied Products block will be inserted here

 

Community access and public space

Beyond its environmental achievements, the expansion also aimed to create a more inclusive and community-focused public space. A redesigned ground level improves engagement with the city through enhanced sidewalk transparency and accessibility. Inside, a large, light-filled atrium now serves as a civic gathering space that welcomes both visitors and residents, strengthening the center’s role in the cultural and social life of San Francisco.

photo_credit Matthew Millman
Matthew Millman
photo_credit Tim Griffith
Tim Griffith
Share or Add Moscone Center Expansion to your Collections