Archello Awards 2025: Open for Entries! Submit your best projects now.
Archello Awards 2025: Open for Entries!
Submit your best projects now.
Pine Heath
Felix Speller

Pine Heath

Applied products
View all applied products

Set within a leafy enclave of the Hampstead Conservation Area in North London, a modernist townhouse now stands confidently refurbished for a young couple and their daughter, expertly designed by emerging architecture and interiors practice, Studio Hagen Hall.

The home is part of a handsome cluster of nine properties, including five townhouses originally designed by South African architect Ted Levy, Benjamin & Partners in the late 1960s, representing a key part of progressive post war design thinking in London’s built history. Externally each of the neighbouring homes appear uniformly designed with subtle reference to Cape Town coastal developments in the 50s and 60s, but interiors had since been sporadically renovated, and the majority of them stripped of their modernist character. ‘Pine Heath’ is one of the last remaining houses to retain many original features still intact throughout.

Drawn to the original, mid-century charm and interiors of the home, the clients briefed Studio Hagen Hall to revive the tired terraced house into a warm, broken plan, polished home for their growing family, with a keen focus on upgrading its overall energy efficiency and performance.

photo_credit Felix Speller
Felix Speller
photo_credit Felix Speller
Felix Speller

As long time followers of the practice and admirers of previous completed projects, including Canyon House, the clients appointed Studio Hagen Hall in 2021 for its approachability, extensive experience in modernist restorations, and ability to deliver technically challenging architecture with warm, sensitive, and timelessly crafted interiors.

Studio Hagen Hall was initially appointed to lightly refurbish the home, involving only the kitchen, bathrooms and windows, but on careful inspection realised that the home’s true potential lay in much wider renovation. Studio Hagen Hall proposed a bespoke restoration encompassing the whole house that would improve operational efficiency and reduce overall project costs in the long term, and ultimately introduce a more sophisticated and pragmatic series of living spaces to suit a functional, life-long home.

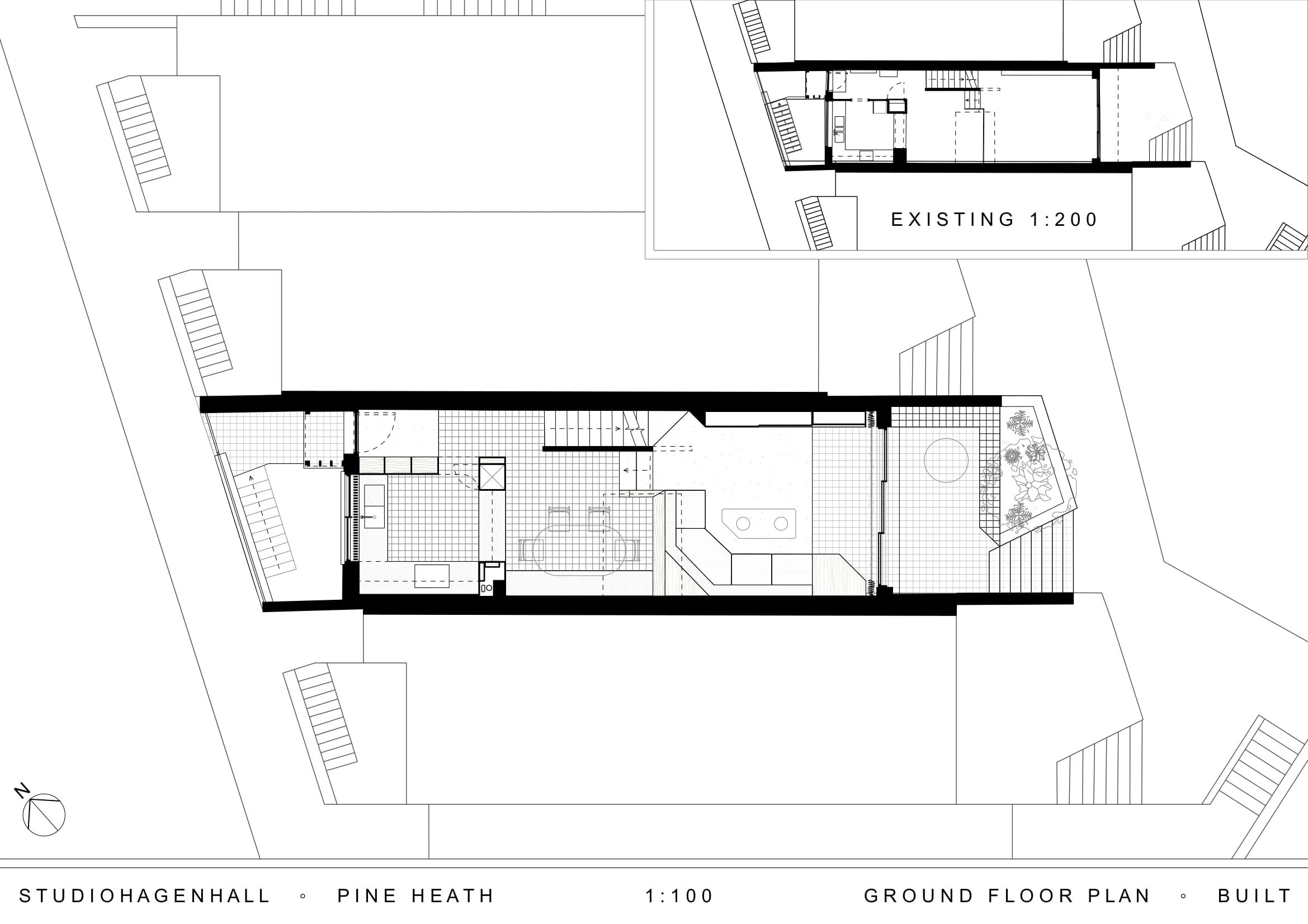
Alongside the aesthetic and energy-improvement brief for Pine Heath, spatial planning needed much consideration throughout the property. The new arrangement lays out a defined relationship between indoor and outdoor zones. A more logical connection is re-established between entrance, kitchen and living areas, and large amounts of storage and multi-purpose functionality are introduced into these communal spaces.

photo_credit Felix Speller
Felix Speller
photo_credit Felix Speller
Felix Speller

Previously a three bedroom home, Studio Hagen Hall has utilised the property’s five storeys to deliver a cleverly and subtly zoned floor plan, balancing social family space with distinct areas for rest, utility, work, and play. It now comprises an additional fourth guest bedroom suite-cum-gym in the basement, plus a new office and guest sleeping pod in the eaves of the property.

The original central stairwell and timber clad ceilings acted as a cue to reinstating the modernist characteristics of Pine Heath. The aged Paraná pine, a highly sought after endangered species, formed the foundation for the project’s material palette and further references Studio Hagen Hall’s sensitive design choices to work around and preserve original, indelible detail throughout the home.

Other intentional devices are employed by Studio Hagen Hall to improve sightlines and accentuate spatial flow between each room. In the bedrooms, old doors and openings have been replaced with floor to ceiling pocket doors maintained at 2.5 metres high, and subtly re-aligned to allow perfect views all the way from the front to the back of the house. Storage spaces in the bedrooms, once running laterally, now run perpendicular so that windows and views are completely unfettered and viewed through deep timber-lined portals.

photo_credit Felix Speller
Felix Speller
photo_credit Felix Speller
Felix Speller

On entry, visitors are greeted by a generous hallway and a built-in cloak area complete with bench, with direct vistas reaching the terraced patio and communal gardens to the rear of the home. Navigating this visual journey, occupants are carried along acute horizontal datum lines, and a tile grid that continues throughout the whole house; window sills, joinery, and spaces with angular changes cut at 45 degree angles, highlight Studio Hagen Hall’s meticulous and exceedingly satisfying approach to spatial design.

The new bespoke kitchen nods to the client and Studio Hagen Hall’s shared interest in quality craftsmanship, showcased in dynamic, yet sensitive, material detailing. Brushed stainless steel worktops sit deftly atop the bespoke cabinetry, individually fitted to mask all domestic appliances such as the fridge, dishwasher and bespoke extractor fan hood. Custom designed and milled sapele handles mirroring existing mahogany accents throughout the house.

Period details of the original modernist kitchen have been accentuated for contemporary use; textured, stippolyte glass cabinetry together with a sweeping curved timber fascia now envelopes the kitchen, aligning with the original horizontal window datum and framing the serving hatch to the dining area. Custom mechanical louvre window shutters are installed above the sink providing privacy from the street when required.

photo_credit Felix Speller
Felix Speller
photo_credit Felix Speller
Felix Speller

A warm yet refined palette forms the basis for the interior mood of Pine Heath. The joinery has been expertly crafted in a complimentary veneer, subtly stained to match the original Paraná pine strip ceiling and stair cladding within the home. Studio Hagen Hall added textures and colours to elevate the atmosphere, with rich greens tying the house together, displayed in the raised living area, stairwell and covering all of the bespoke upholstered furnishings in the living, dining and sleeping spaces.

Earthen colours come together to create dramatic interior focal points, in the colour-drenched tiled bathrooms punctuated by browns, greens and blues, selectively chosen to compliment the cherry wood joinery, seamless mirror glazing and bespoke barisol lighting. Microcement flooring flows through the upper floors, deepening the relationship between materiality and ambience.

In numbers terms, Pine Heath now reads at a much higher thermal performance. Studio Hagen Hall retained the appearance of the original fenestration by replacing the original single-glazed aluminium windows with a custom hybrid solution, comprising timber frames with aluminium and vacuum glazing inserts.

photo_credit Felix Speller
Felix Speller
photo_credit Felix Speller
Felix Speller

Beyond the upgrade to the glazing, insulation was added internally to key areas of concrete and brick structure to drastically reduce cold-bridging. Trickle and adjustable air vents in each room provide fresh airflow via the new centralised mechanical extract ventilation system. The property also features integrated solar panels, an air-source heat pump, underfloor heating, and full roof insulation to meet and more than exceed standard energy efficiency requirements.

An exemplar in sensitively considered architecture and interior design, Pine Heath demonstrates a deep understanding of knowing how to preserve detail through bespoke craft. Studio Hagen Hall and their clients shared this clear vision from the outset for a timeless home for a young family to grow into and enjoy sustainably for years to come, creating a leading example of a London modernist house transformation.

photo_credit Felix Speller
Felix Speller
photo_credit Felix Speller
Felix Speller

Team:

Architect, Interior Designer, Joinery Design: Studio Hagen Hall
Joinery Design & Fabrication: TG + Co
Structural Engineer: Blue Engineering
Environmental Engineer: EPC Improvements
Main Contractor: Michal Madejczyk
Services Contractor: DanBro 
Approved Inspector: All Building Control
Photographer: © Felix Speller

photo_credit Felix Speller
Felix Speller
photo_credit Felix Speller
Felix Speller

Materials Used:

Microcement: Remjo Django Finishes

Upholstery: Charles of Lloyd // A J Brett

Aluminium windows: panoramah!

Timber window frames: F&E Joinery

Tiles: Wincklemans, Porcelain stoneware (unglazed)

Curtains: Silent Gliss, The Cloth Shop "Wave" Linen

Joinery / Cabinetry / Panelling: TG + Co, Studio Hagen Hall Cherry (+ Pine stain)

Carpet (fitted): Balsan Les Best Balsan Nylon / Wool blend

Wall lights: W.L.P. Twist Type 124 Knud Christensen Painted steel

Wall lights Louis Poulson Homann Wall Lamp (vintage) Alfred Homann Painted steel

Small pendant: Herman Miller Nelson Bubble Pendant (vintage) George Nelson Paper & resin

Sofa: bespoke Studio Hagen Hall Tibor "Brecon"

Low table: TG + Co Levy Table Studio Hagen Hall Cherry & smoked glass

Table lamp: Guzzini Elpis (vintage) Luigi Massoni Milk glass & stainless steel

Table lamp: Ikea Fado Ikea Milk glass

Pendant: HAY Paper Shade HAY Paper

Chairs: Koefoeds Hornslet Ole Chair (vintage) Niels Koefoed Teak & Tibor "Brecon"

Table: unknown n/a (vintage) unknown Marble + stainless Steel

Bench: TG + Co bespoke Studio Hagen Hall Tibor "Brecon"

Cabinetry: TG + Co bespoke Studio Hagen Hall Cherry & stippolyte glass

Inset handles: TG + Co bespoke Studio Hagen Hall Sapele

Countertops: Cavendish Equipment bespoke Studio Hagen Hall Stainless steel

Tap / Mixer: Vola 590M Vola Stainless steel

Oven, Hob: Bertazzoni

Extract: Westin

Basin: Ceramica Cielo

Tap: Crosswater

Barrisol light: TG + Co

Hand Towel: Baina

Foldaway Bed: TG + Co / Hafele

Sideboard: Archie Shine

Table lamp: Guzzini, Olympe

Chair: Cassina, Model 121 Chair (vintage)

Daybed: Fritz Hansen, PK80 Daybed

Low table: Cassina

Table lamp: Flos, Gatto

Chairs: Elliots of Newbury Carver Chair (vintage)

Wall light (bedside): Ikea Type V204 (vintage)

Bed: ReFramed TR Bed

Bedding: Tekla Percale "Hopper Stripes"

Basin: Ceramica Cielo Shui Comfort (wall-hung)

Tap: Crosswater MPRO

Toilet: Ceramica Cielo Shui Comfort (wall-hung)

Barrisol light: TG + Co bespoke

Hand Towel: Baina Josephine "Tabac & Noir"

Towel radiator: West One Bathrooms Sussex Range

Towel: Baina Roman "Tabac & Noir"

Table lamp: Guzzini Elpis (vintage)

Wall light: Artemide Dioscuri

Chair Cassina: Zig Zag (vintage)

Bed: ReFramed TR Bed

Bedding: Tekla Percale "Winter White"

Table lamp (bedside): Frama T-Lamp

Bedside table: TG + Co SG Side-table

Screens: Haxch bespoke

Basin: Bette Commodo

Cot / bed: Petit Amélie Cocoon Oval Toddler Bed

Bedding: Petit Amélie Striped "Beige & Caramel"

Mobile: Volta Seoul table mobile

Basin: Bette Lux Oval

Bath: Bette Classic

Wall light: Artemide Dioscuri

Desk chair: Inno "Select" collection

Desk lamp: unknown Ministerial table light (vintage)

Wall light: Nemo Lighting Applique à Volet Pivotant

Concrete Table & Stools: "Anthony"

Caption
Caption
Caption
Share or Add Pine Heath to your Collections